• 丝瓜APP幸福宝入口,污污丝瓜视频下载,丝瓜视频黄片APP,丝瓜视频色版在线观看

    盐城市丝瓜APP幸福宝入口组合机床有限公司
    全国咨询热线
    13770088480
    热门关键词:
    产品展示
    PRODUCT CATEGORIES
    铣削污污丝瓜视频下载 丝瓜视频色版在线观看污污丝瓜视频下载 污污丝瓜视频下载配件 污污丝瓜视频下载维修 机械滑台 进给箱 标准双面铣 组合机床
    联系丝瓜APP幸福宝入口 / Contact
    盐城市丝瓜APP幸福宝入口组合机床有限公司
    地址:盐城亭湖区新洋街道新盐路51号
    联系人:杨经理
    手机:13770088480
    电话:0515-88631001
    传真:0515-88631002
    邮箱:13770088480@139.com
    网址:http://www.chuanshigroup.com
    产品展示/  PRODUCTS 当前位置:首页 >> 产品展示 >> 铣削污污丝瓜视频下载

    1TX50铣削污污丝瓜视频下载

    [来源:www.chuanshigroup.com] [铣削污污丝瓜视频下载] [收藏本页] [打印本页] [关闭窗口]

    1TX50铣削污污丝瓜视频下载是龙门刨改铣专用铣头,可单独使用,用以完成对铸铁、钢件及有色金属类零件的平面铣削、键槽、燕尾槽、花键等铣削加工。

    1TX50铣削污污丝瓜视频下载可改成手柄变速

    另有1TX63丝瓜视频黄片APP控定制,功率可达37KW,具体详情欢迎来电索取。


    1TX50铣削污污丝瓜视频下载技术参数

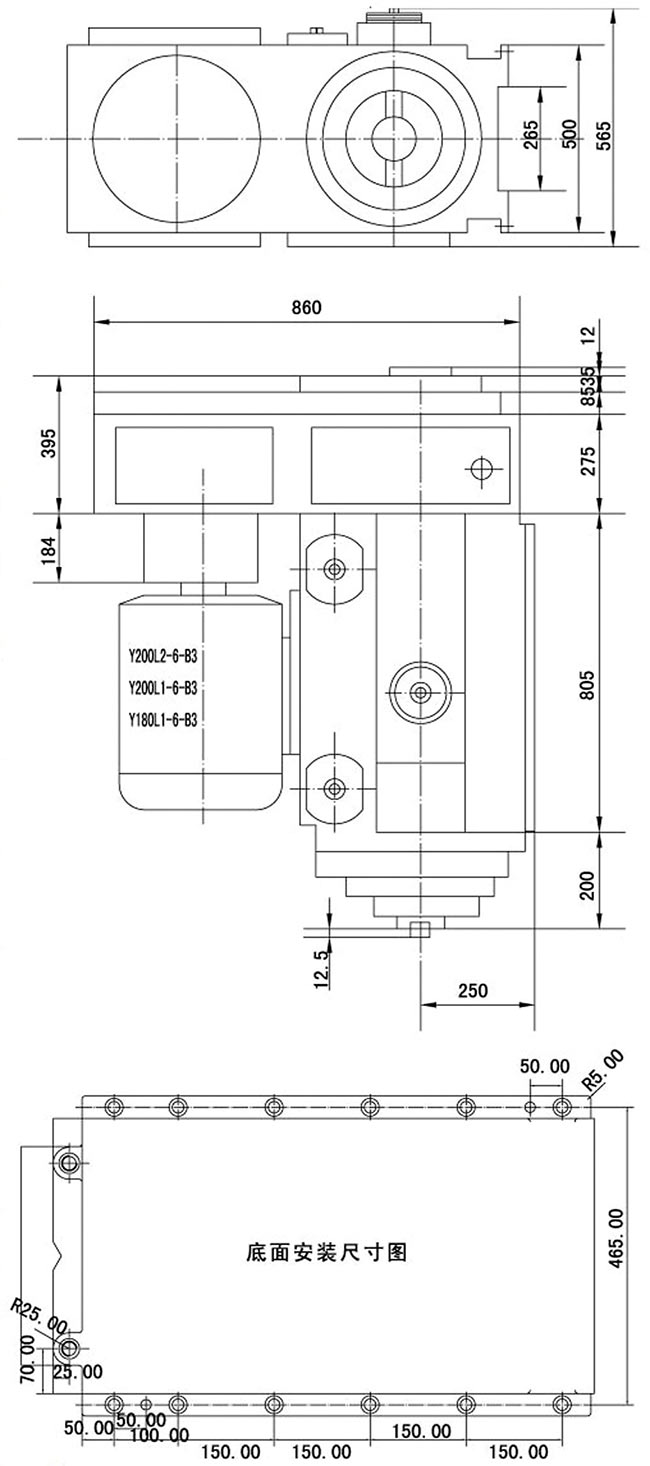
    1TX50铣削污污丝瓜视频下载图纸

    1TX50铣削污污丝瓜视频下载维保注意事项如下:

    一、日常检查与维护

    1. 每天开机前,应检查油泵的供油状态,确保供油系统正常工作,无油或漏油现象应及时维修。

    2. 定期检查电源情况,若发现损坏,需及时维修或更换,以确保污污丝瓜视频下载正常运行。

    3. 保持铣削污污丝瓜视频下载的清洁,定期清理铁屑、油污等杂质,防止生锈和堵塞。

    4. 经常加润滑油,保证导轨和各个部件的润滑效果,提高加工精度和可靠性。

    二、使用注意事项

    1. 在选定主轴转速后,应使用手动转动刀盘或电器装置来点动主轴的旋转,禁止在主轴还在旋转时突然变速,以避免对设备造成损坏。

    2. 铣削污污丝瓜视频下载工作时,必须确保夹紧手柄处于夹紧状态,防止在铣削过程中发生松动或移位。

    3. 使用合适的切削用量和刀盘,避免产生过大的震动和负荷,影响加工质量和设备寿命。

    4. 在快速或自动进给铣削时,应注意工作台的位置,避免走到极限位置挤坏丝杆。

    5. 操作过程中需注意安全,不要碰到或擦到转动部位,若中途离开,必须将机床关闭后再离开。

    三、定期保养与校对

    1. 定期对铣削污污丝瓜视频下载进行精度校对,确保加工精度符合要求。若发现部件磨损超过标准,应及时更换。

    2. 对电气部分进行定期清扫和检查,保证电气装置固定、安全和整齐。若发现异常或损坏,应及时维修或更换。

    3. 定期对球墨铸铁前面的密封圈的外露部分涂适量的油,以保持其润滑效果和密封性能。

    通过以上维保注意事项的执行,可以确保1TX50铣削污污丝瓜视频下载的正常运行和延长使用寿命,同时提高加工效率和质量。

    版权所有:盐城市丝瓜APP幸福宝入口组合机床有限公司  2024 苏ICP备59648663号 网站地图 技术支持:鹤翔网络
    联系人:杨经理 热线手机:13770088480 电话:0515-88631001 传真:0515-88631002
    地址:盐城亭湖区新洋街道新盐路51号
    网站地图